Standard 45 Degree Elbow - Paint Spray Booth
Standard 45 Degree Elbow
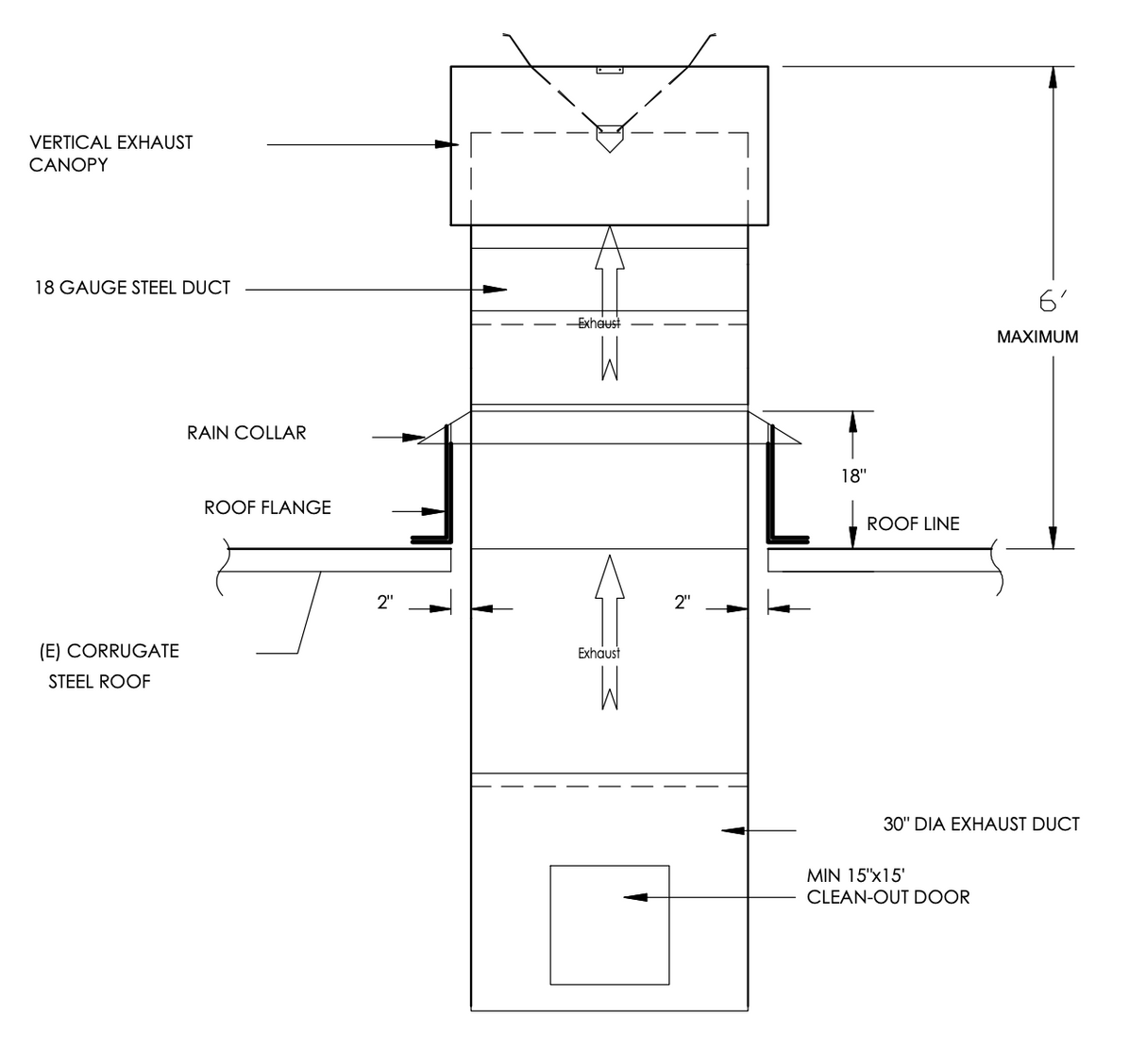
Paint Spray Booth Exhaust stack components are fabricated from galvanized steel: 20 gauge for under 30" diameter; 18 gauge for 30" diameter and above. Available stack sizes are 12", 18", 24", 30", 34", and 42" diameters. Duct design meets Uniform Fire Code NFPA 91, latest edition.
Elbows are used to allow your ductwork to align with rafter spacing. Normally sold in pairs.
NOTE: Pricing is each, TFS recommends ordering in quantities of 2 per exhaust stack.
FOB - You will be contacted with a freight quote or you can arrange your own freight.
Booth duct and accessories are custom made. They are non-returnable/sales are final once shipping is confirmed
Payment & Security
Payment methods
Your payment information is processed securely. We do not store credit card details nor have access to your credit card information.





