Standard Roof Flashing for Flat Roof - Paint Spray Booth
Standard Roof Flashing for Flat Roof
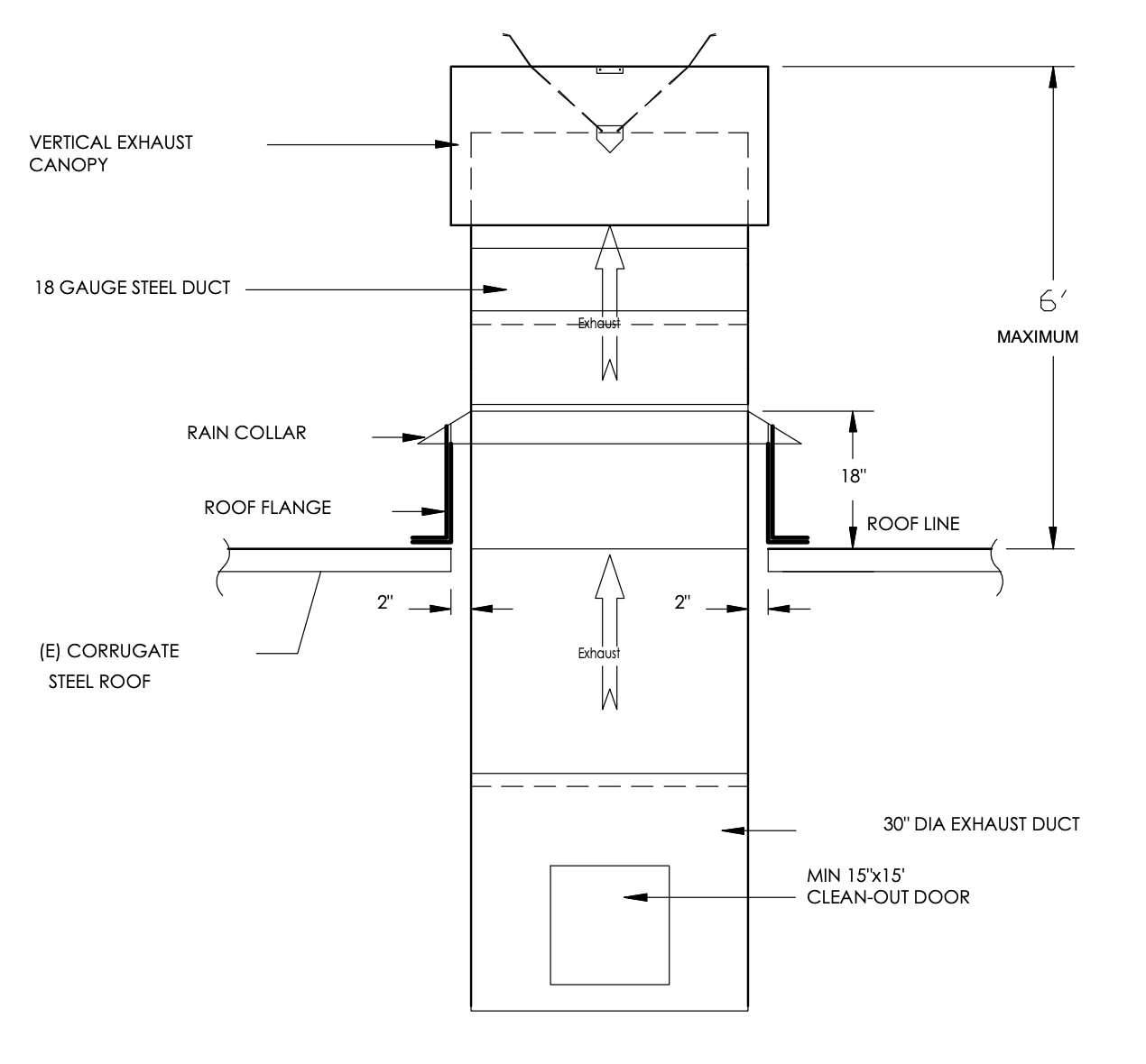
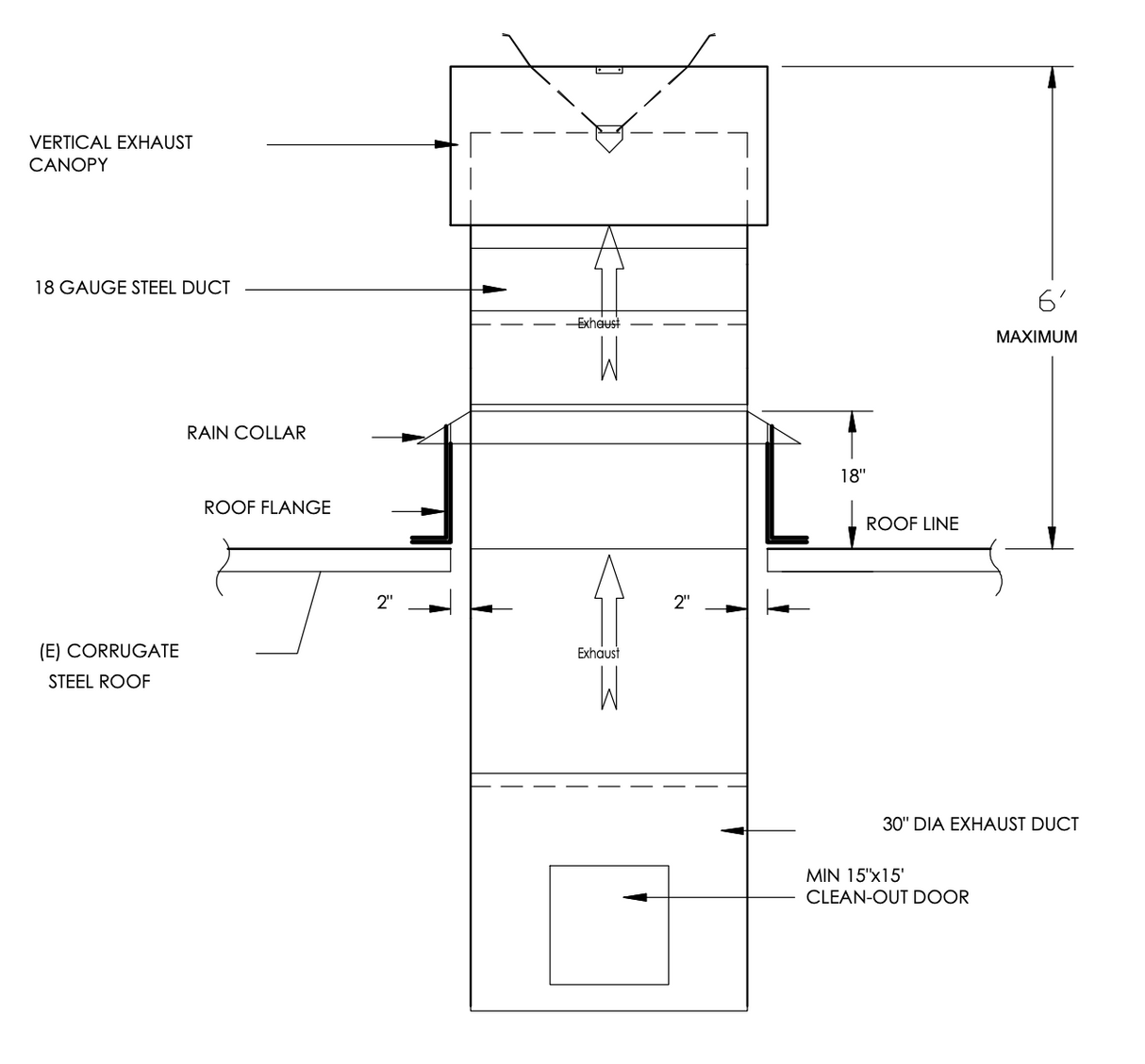
Paint Spray Booth Exhaust stack components are fabricated from galvanized steel: 20 gauge for under 30" diameter; 18 gauge for 30" diameter and above. Available stack sizes are 12", 18", 24", 30", 34", and 42" diameters. Duct design meets Uniform Fire Code NFPA 91, latest edition.
Order the same diameter as duct. Flashing diameter is 6" larger than duct. The is required by NFPA code.
FOB - You will be contacted with a freight quote or you can arrange your own freight.
Booth duct and accessories are custom made. They are non-returnable/sales are final once shipping confirmed
Parts and Accessories:
- SBE155-XX Duct Quarter Section Skirt (Collar)
Payment & Security
Payment methods
Your payment information is processed securely. We do not store credit card details nor have access to your credit card information.





