Wall Shutter - Paint Spray Booth
Wall Shutter
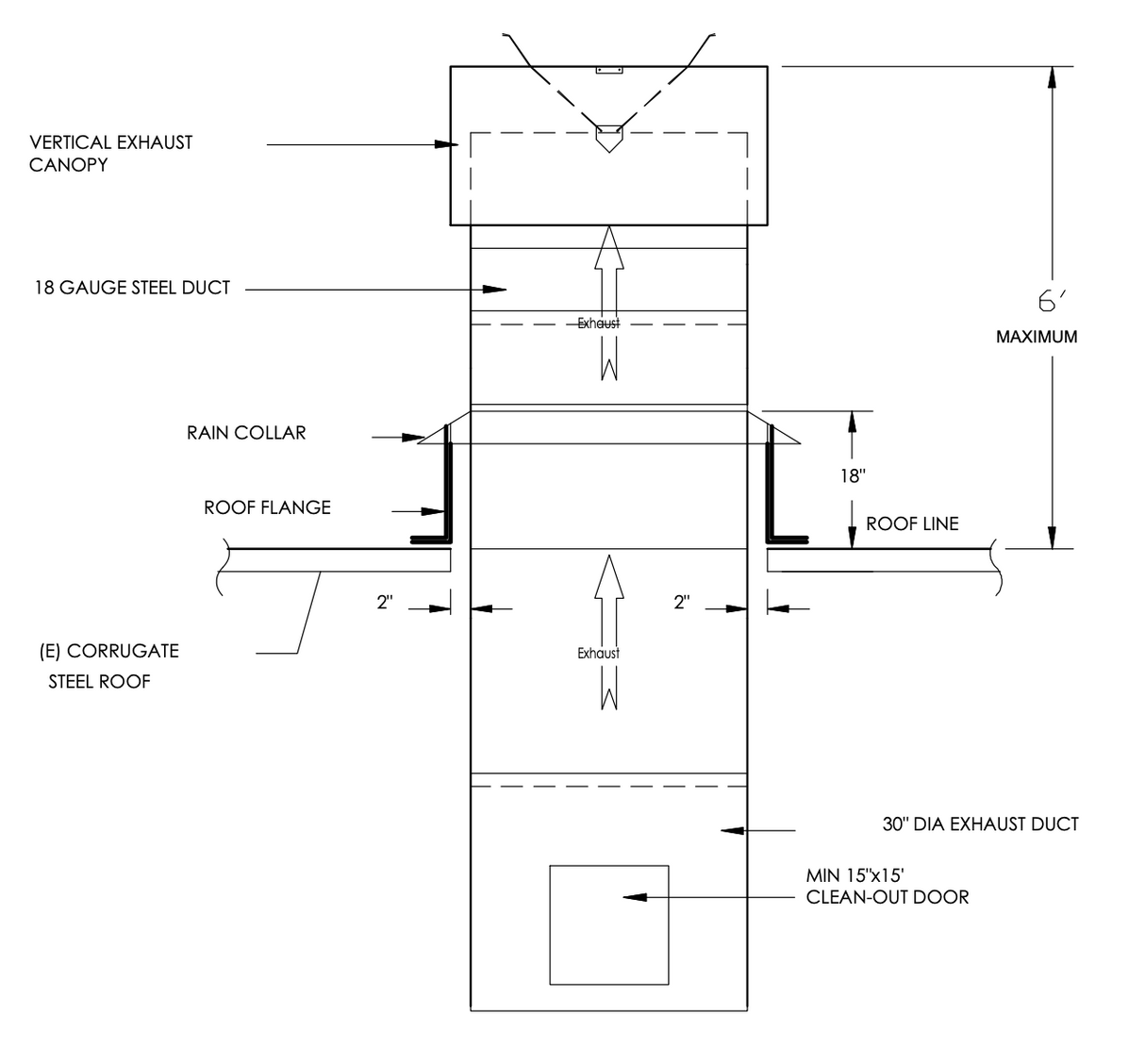
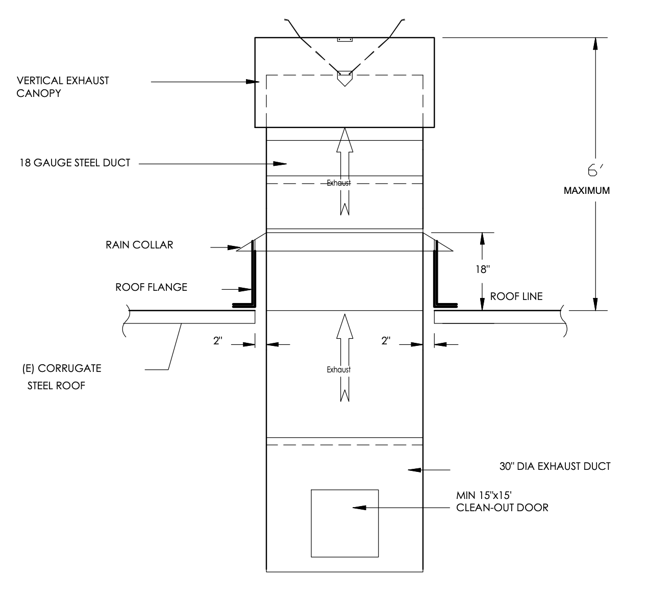
Paint Spray Booth Exhaust stack components are fabricated from galvanized steel: 20 gauge for under 30" diameter; 18 gauge for 30" diameter and above. Available stack sizes are 24", 30", 36", and 42" diameters. Duct design meets Uniform Fire Code NFPA 91, latest edition.
Round duct to square shutter flashing/adaptor is included.
FOB - You will be contacted with a freight quote or you can arrange your own freight.
Booth duct and accessories are custom made. They are non-returnable
Payment & Security
Payment methods
Your payment information is processed securely. We do not store credit card details nor have access to your credit card information.








